TIPITOP

DIMENSIONES

· 4 x 8, 5 m totales
· 4 x 6 m interiores en planta baja, 3,30 x 3,65 m en planta altillo y 4 x 2,5 m de terraza
ESPACIOS
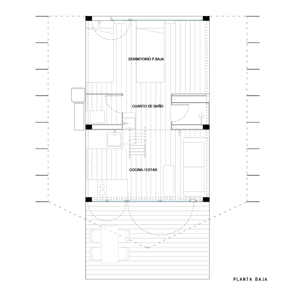
· Estar/cocina: 9 m² (posibilidad de sofá cama)
· Dormitorio de planta baja : 9,48 m² (espacio para 3 camas individuales ó matrimonio + cuna ó cama supletoria y espacio de armario)
· Dormitorio del altillo: 11,90 m², dormitorio para dos personas con una configuración flexible.
· Baño: 3,20 m²
· Terraza: 10 m²

 

  • Max. 4+1

  • 34 m²

Dos habitaciones, flexible configuración de camas.

Zona de cocina y estar de 9 m2 con posibilidad de incluir un sofá cama

Baño de 3,20 m2 que incluye todo lo necesario para el aseo

Cuenta con una luminosa terraza exterior de 10 m2

DORMITORIO
PLANTA BAJA

Dormitorio de 9,48 m2 con espacio para 3 camas individuales, cama de matrimonio + cuna o cama supletoria y espacio de armario.
Con mecanismos conmutados y luminarias de lectura y enchufes.

DORMITORIO
ALTILLO

Dormitorio de 11,90 m2 para dos personas con configuración flexible. Con mecanismos conmutados y luminarias de lectura y enchufes.

ESTAR / COCINA
PASO ASEO

Estar / Cocina de 9 m2 con posibilidad de incluir sofá cama + aseo de 3,20 m2 de paso al dormitorio de la planta baja

ZONA DE CUARTO DE BAÑO

Dispuesto entre el estar y el dormitorio de planta baja, el aseo se compone de zona de lavabo con luminaria, una cabina de ducha y otra de inodoro.

OPCIONES DE  PERSONALIZADO

Disponemos de varios acabados y terminaciones tanto para exterior como para interior. Distintos módulos de mobiliario y colores para los mismos. Personaliza la tienda según tus gustos y necesidades.

ELECTRODOMÉSTICOS

  • Nevera de 85cm
  • Vitro de inducción  de 2 fuegos
  • Microondas
  • Tostadora y cafetera
  • TV

MOBILIARIO

  • Todo el mobiliario para una experiencia perfecta
  • Colchones
  • Almohadas

TEJIDOS

  • Cortinas foscurizantes
  • Tapiados en tela nautica
  • Almohadones
  • Toallas y sabanas

INSTALACIONES

  • Aire acondicionado frío/calor
  • Termo de agua caliente

FICHA TÉCNICA COMPLETA

CONTACTA CON NOSOTROS

Si quieres más información contacta con nosotros.
¡Nos adaptamos a todas tus necesidades!