TIPITOP
LARGE
DIMENSIONES
· 4 x 9,3 m totales
· 4 x 6,8 m interiores en planta baja, 3,30 x 3,65 m en planta altillo y 4 x 2,5 m de terraza
ESPACIOS
· Estar/cocina: 12,50 m² (posibilidad de sofá cama)
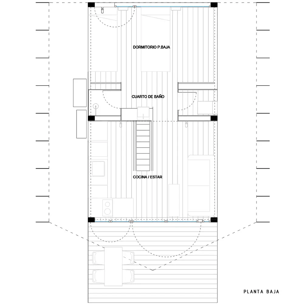
· Dormitorio de planta baja : 9,48 m² (espacio para 3 camas individuales ó matrimonio + cuna ó cama supletoria y espacio de armario)
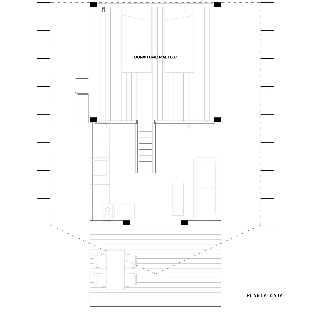
· Dormitorio del altillo: 11,90 m², dormitorio para dos personas con una configuración flexible.
· Baño: 3,20 m²
· Terraza: 10 m²
-
Max. 5+1
-
37.2 m²

Dos habitaciones, con configuración de camas flexible.

Zona de cocina y estar de 9 m2 con posibilidad de incluir un sofá cama

Baño de 3,20 m2 que incluye todo lo necesario para el aseo

Cuenta con una luminosa terraza exterior de 10 m2
ESTAR / COCINA
PASO ASEO
Estar / Cocina de 9 m2 con posibilidad de incluir sofá cama + aseo de 3,20 m2 de paso al dormitorio de la planta baja
DORMITORIO
ALTILLO
Dormitorio de 11,90 m2 para dos personas con configuración flexible. Con mecanismos conmutados y luminarias de lectura y enchufes.
DORMITORIO
PLANTA BAJA
Dormitorio de 9,48 m2 con espacio para 3 camas individuales, cama de matrimonio + cuna o cama supletoria y espacio de armario.
Con mecanismos conmutados y luminarias de lectura y enchufes.
ZONA DE CUARTO DE BAÑO
Dispuesto entre el estar y el dormitorio de planta baja, el aseo se compone de zona de lavabo con luminaria, una cabina de ducha y otra de inodoro.
OPCIONES DE PERSONALIZADO
Disponemos de varios acabados y terminaciones tanto para exterior como para interior. Distintos módulos de mobiliario y colores para los mismos. Personaliza la tienda según tus gustos y necesidades.

ELECTRODOMÉSTICOS
- Nevera de 140cm
- Lavaplatos
- Vitro de inducción de 2 fuegos
- Microondas
- Tostadora y cafetera
- TV

MOBILIARIO
- Todo el mobiliario para una experiencia perfecta
- Colchones
- Almohadas

TEJIDOS
- Cortinas foscurizantes
- Tapiados en tela nautica
- Almohadones
- Toallas y sabanas

INSTALACIONES
- Aire acondicionado frío/calor
- Termo de agua caliente
FICHA TÉCNICA COMPLETA
CONTACTA CON NOSOTROS
Si quieres más información contacta con nosotros.
¡Nos adaptamos a todas tus necesidades!






